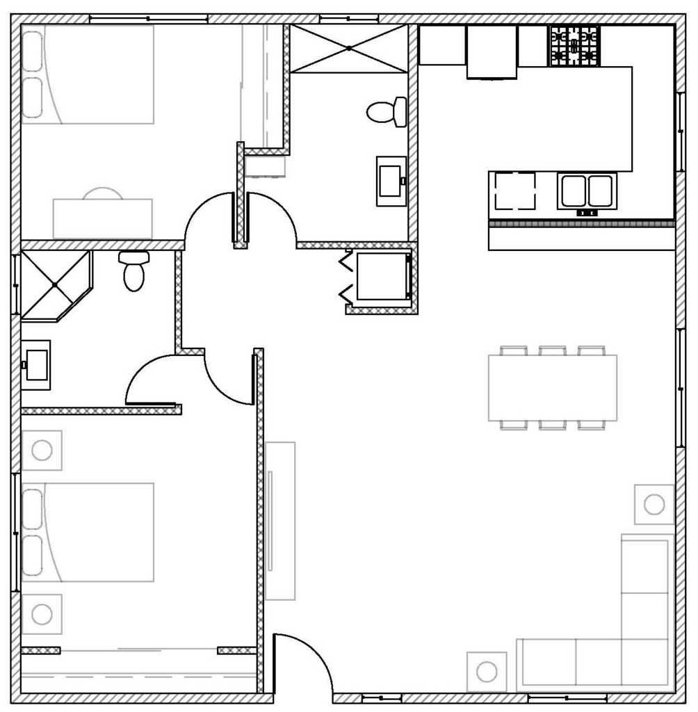
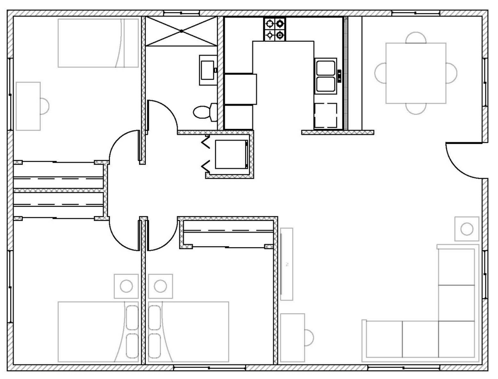
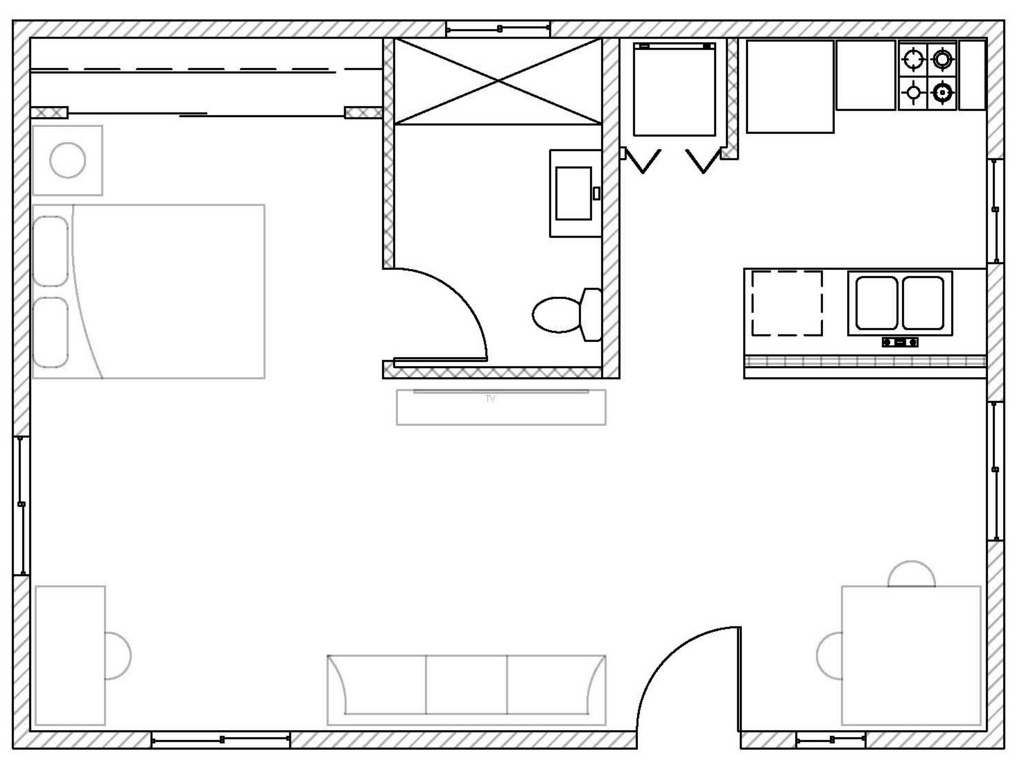
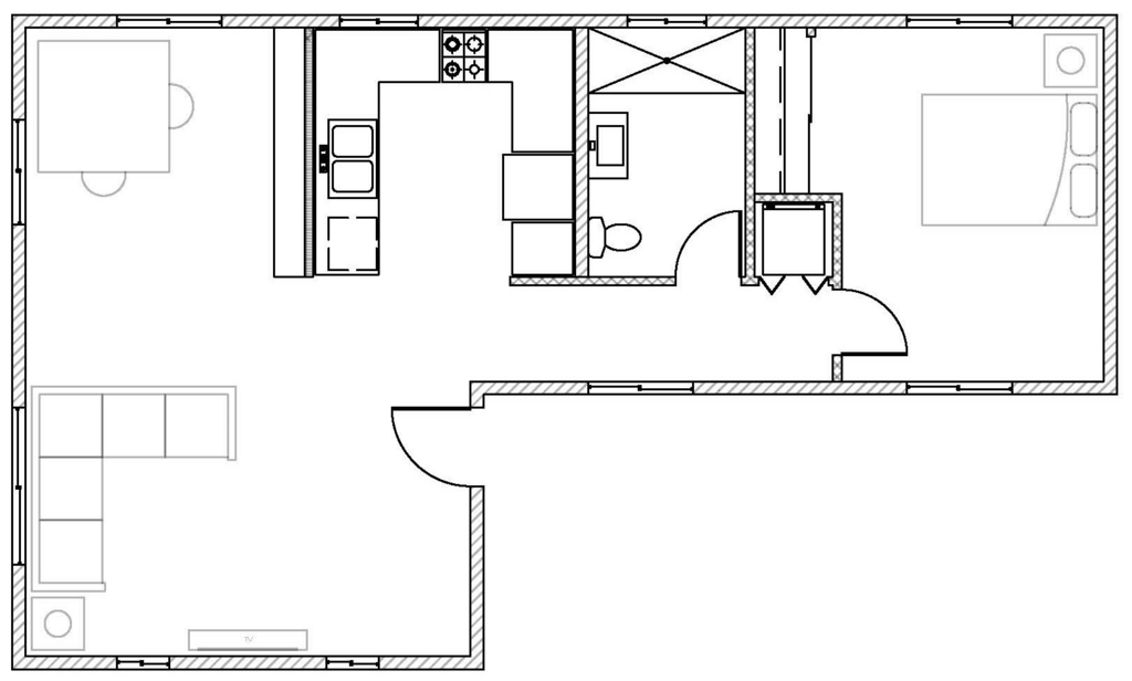
What We Do
Our Process

Tell us about your property and ADU goals. We'll review your lot, zoning requirements, and discuss possible layouts.

We meet at your property to evaluate placement options, utilities, and construction logistics.

Once plans and permits are approved, our team manages construction and keeps your project moving until completion.
Customer Reviews
ADU costs vary depending on size, design, site conditions, and utilities. In Southern California most ADUs range between $150K and $400K. We provide project-specific estimates after reviewing your property.
The construction phase of an ADU typically takes 6 to 10 months, depending on the size, scope, and complexity of the project. This timeline reflects build time only and does not include the design or permitting phase.
Many single-family properties in California qualify for ADUs, but zoning, lot size, and access can affect placement. Our team can review your property and help determine eligibility.
Yes. We guide homeowners through the permit process and work with the appropriate city departments to move projects forward.
In most cases, yes. Many ADU projects allow homeowners to remain in their primary residence throughout construction, especially for detached units. We plan each project to minimize disruption as much as possible.